リフォーム施工事例

予算内でここまで出来た!!補助金を活かした再生住宅

予算内でここまで出来た!!補助金を活かした再生住宅

浄化槽が単独浄化槽であり、今後のことを考え合併浄化槽に変更しました。そのため位置も変わり庭に大きな穴を掘り設置致しました。幸運にも補助金が使えほぼ無料で行うことができ、申請は全て弊社で行いました。 また内部の水廻りは、お風呂とキッチン、洗面、トイレ、全てをLIXIL製品でやり替えることができました。 もともと和室だった場所は洋室にしました。費用を抑えるため長押や柱はそのままにし、手垢やシミをカバーする効果もある濃いブラウン色で塗装を行い、古民家風の素敵な空間に生まれ変わりました。リビングも床は部分的に補修をし、壁天井などをリフォームしました。細かいですが、壁に目透かし張りがあったためほこりが入りやすいので、その部分も埋めることができました。2階の洋室1階のリビング和室すべてに二重窓を設置し、約40%の断熱効果アップが見込まれます。屋外の駐車場も整備し、内外すべてが新築同様になり、大変にお喜びいただけました。

Before

予算内でここまで出来た!!補助金を活かした再生住宅
お客様名Y様邸
施工エリア豊橋市神野新田町
リフォーム期間

2ヶ月

費用

1,100万

お悩み・ご要望

築30年が経ち、お家全体が古くなってきました。これまであまり手を入れてこなかったので、今後新たにご家族で住むにはもうそろそろ手を入れないといけないと思われ今回の全面改修工事をご決断されました。

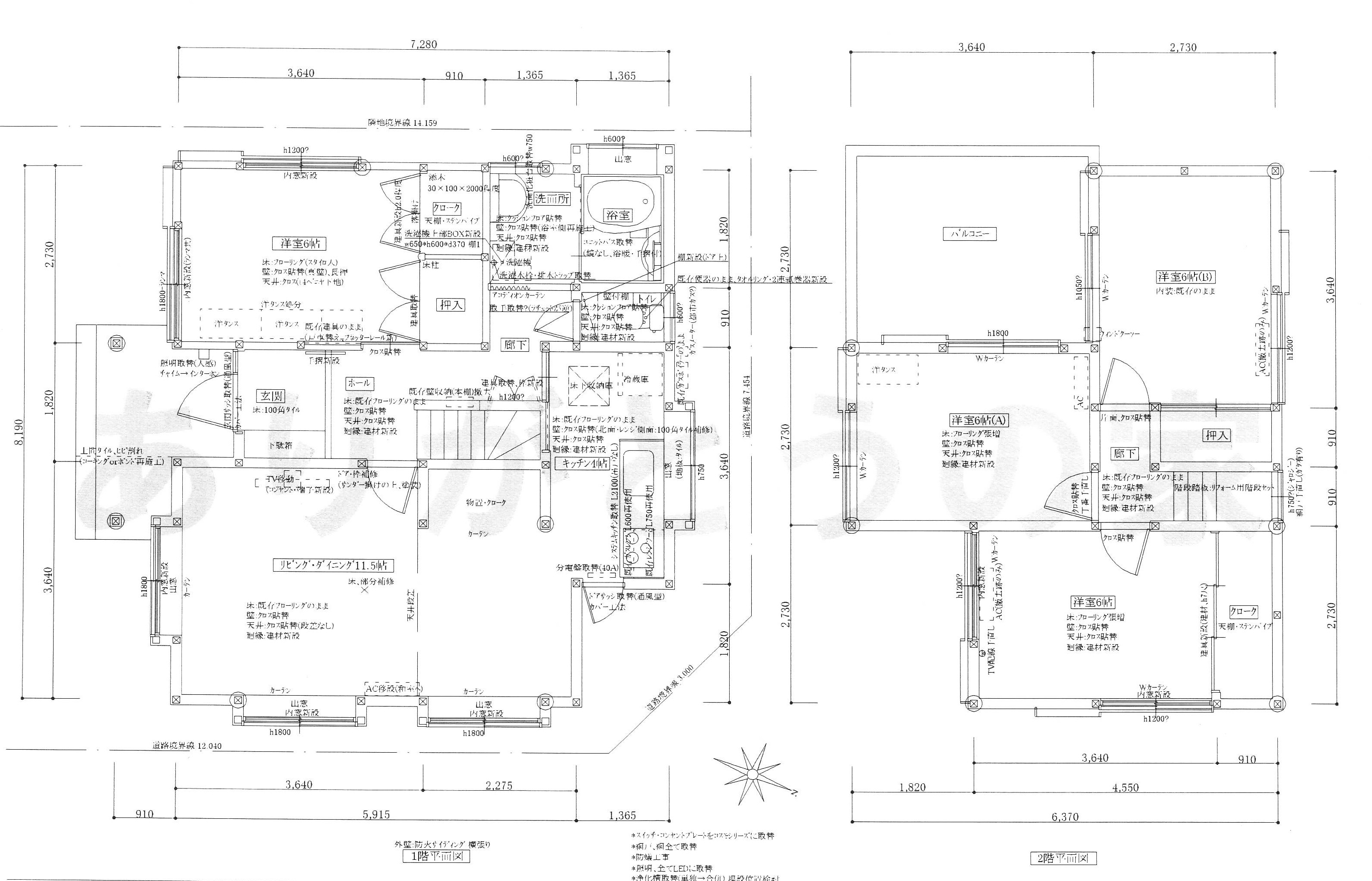
プラン

before
予算内でここまで出来た!!補助金を活かした再生住宅
after
予算内でここまで出来た!!補助金を活かした再生住宅

ここがポイント

  • 予算内でここまで出来た!!補助金を活かした再生住宅

    和室は長押や柱はそのままにし、濃いブラウン色で塗装しました。フローリングを張り、床の間をクロークに改修し古民家風の素敵な空間に生まれ変わりました。

  • 予算内でここまで出来た!!補助金を活かした再生住宅

    LIXILシエラI型キッチン。換気扇とガスコンロは既設を再利用しています。勝手口は通風タイプに取替え、防犯性を確保しながら換気することができます。

  • 予算内でここまで出来た!!補助金を活かした再生住宅

    浴室はダブル保温構造で湯温が冷めにくく、省エネ・快適・お手入れ簡単なLIXILリデアMタイプ。 ダーク系のアクセントパネルでリラックスしてご入浴頂けます。

施工中1

予算内でここまで出来た!!補助金を活かした再生住宅

キッチンを解体していきます。

予算内でここまで出来た!!補助金を活かした再生住宅

和室を解体していきます。

予算内でここまで出来た!!補助金を活かした再生住宅

ユニットバスの解体を行いました。以前リフォームをされていたようです。

予算内でここまで出来た!!補助金を活かした再生住宅

リビングの解体が完了しました。

施工中2

予算内でここまで出来た!!補助金を活かした再生住宅

和室の床を張りました。嵩上げした根太に断熱材+捨て貼りを行いました。

予算内でここまで出来た!!補助金を活かした再生住宅

その上にフロアーを張り養生まで完了しています。

予算内でここまで出来た!!補助金を活かした再生住宅

床の間は、クロークに造り替えます。

予算内でここまで出来た!!補助金を活かした再生住宅

和室の天井をクロス仕上げにする為のベニヤを張っていきます。

予算内でここまで出来た!!補助金を活かした再生住宅

木部の変色を隠す為、濃い目の色で塗装しました。クロス壁と柱のコントラストが美しい落ち着いた空間に生まれ変わりました。

施工中3

予算内でここまで出来た!!補助金を活かした再生住宅

単独浄化槽から合併浄化槽に入れ替えます。地下水が凄かったですが何とか設置できました。

予算内でここまで出来た!!補助金を活かした再生住宅

設置完了です。

予算内でここまで出来た!!補助金を活かした再生住宅

外構工事作業状況です。防草シートを張り砂利を敷き詰めます。

予算内でここまで出来た!!補助金を活かした再生住宅

砂利敷完了状況です。

施工中4

予算内でここまで出来た!!補助金を活かした再生住宅

2階の洋室の床を増し張りしました。

予算内でここまで出来た!!補助金を活かした再生住宅

2階洋室の収納をクロークに造り替えています。

予算内でここまで出来た!!補助金を活かした再生住宅

3連引き戸の収納は開口部が広いため大きな荷物の出し入れがしやすく、軽い力で開閉することができます。

施工中5

予算内でここまで出来た!!補助金を活かした再生住宅

階段に手摺の取付を行いました。

予算内でここまで出来た!!補助金を活かした再生住宅

壁を切り取りベニヤを入れ手摺の下地にしています。

予算内でここまで出来た!!補助金を活かした再生住宅

踏板が傷んで来たのでリフォーム用の踏板を張って綺麗に仕上げます。

予算内でここまで出来た!!補助金を活かした再生住宅

クロスを貼替えて完了です。

施工中6

予算内でここまで出来た!!補助金を活かした再生住宅

トイレと洗面所のクッションフロアーを貼りました。

予算内でここまで出来た!!補助金を活かした再生住宅

洗面化粧台の側面に不燃化粧板(セラール)を貼り、汚れ防止としました。 

予算内でここまで出来た!!補助金を活かした再生住宅

トイレのリフォーム完了です。便器は既設を再利用しています。

施工中7

予算内でここまで出来た!!補助金を活かした再生住宅

リビングの掘り込み天井を解体してフラットに造り変えます。グラスウールを充填しボードを張りました。

予算内でここまで出来た!!補助金を活かした再生住宅

出窓の天板が傷んで来たので、ダイノックシートを貼りました。まるで新品の様な綺麗な仕上がりです。

予算内でここまで出来た!!補助金を活かした再生住宅

リビングは、天井の段差を無くすことで一体となり広く感じられます。窓には内窓を取り付け防音・断熱効果のアップを図りました。

ありがとうの家より

ありがとうの家より

Y様このたびは弊社に工事お任せいただき、本当にありがとうございました。相見積もりもなく、ホームページやチラシで弊社を調べて信用してくださりお任せいただきました。予算上ローンのこともあり、多少妥協いただく部分もありましたが、うまくまとまり年内に終わり、お正月を気分良く、迎えることができ、本当におめでとうございます。省エネ補助金も86万円分申請をさせていただきました。ありがとうございました。

関連施工事例

50坪のご実家リノベで大満足!

50坪のご実家リノベで大満足!

豊橋市牛川町 M様邸

詳しく見る

フルリフォームで安心で快適な家に大変身

フルリフォームで安心で快適な家に大変身

豊橋市曙町測点 T様邸

詳しく見る

1階は生活空間、2階はピラティススタジオに大変身の全面リフォーム

1階は生活空間、2階はピラティススタジオに大変身...

豊川市三蔵子町 A様邸

詳しく見る

全面改装の
ご相談・お見積り依頼は
こちら

お問い合わせ内容をご入力の上、送信して下さい。
当フォームにご入力いただいた情報は、SSL技術により暗号化されて送信されます。
また、個人情報は当社プライバシーポリシーに基づき、大切に扱わせていただきます。

ご相談内容任意
※お客様のリフォームのご希望を詳しくお伝えいただける場合はご記入をお願いします。初回ヒアリング時に活用いたします。
お名前必須
ふりがな必須
電話番号必須
ご住所必須
(ハイフンなし・半角英数字)※ご入力いただくと住所が自動入力されます。
都道府県

住所
メールアドレス必須
知ったきっかけ任意

【ドメイン指定受信のお願い】
arigatounoie.comのドメイン指定受信の設定をお願い致します。

お申し込みして頂いたお客様には、自動で受付確認メールを送信しております。受付確認メールを受信されていないお客様は、携帯電話の受信設定により弊社からのメールを受信拒否している恐れがございますので、ご確認ください。